Zum Hauptinhalt springen

Exklusiver Neubau 2 Zimmer DG-Wohnung in Ingolstadt, KfW 40 EH QNG, 10 % Abschreibung

85055 Ingolstadt, Wohnung zum Kauf

Kontaktdaten

Objektdaten

  • Objekt ID
    IN-G8-W09
  • Objekttyp
    Wohnung
  • Adresse
    85055 Ingolstadt
    Bayern
  • Etage
    2
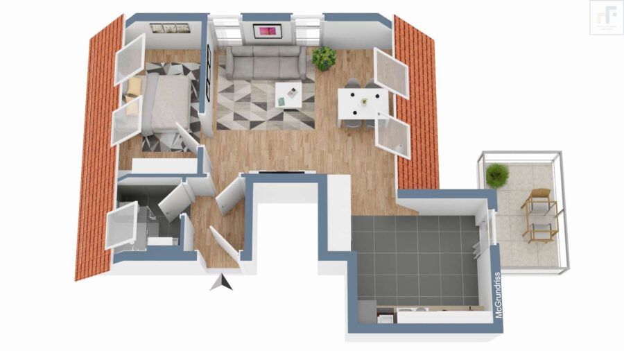
  • Wohnfläche ca.
    55,95 m²
  • Grund­stück ca.
    749 m²
  • Nutzfläche ca.
    10 m²
  • Zimmer
    2
  • Schlafzimmer
    1
  • Badezimmer
    1
  • Balkone
    1
  • Heizungsart
    Fußbodenheizung
  • Wesentlicher Energieträger
    Strom
  • Baujahr
    2027
  • Zustand
    Erstbezug
  • Ausstattung
    gehoben
  • Duplexgaragen
    17.500 EUR
  • Verfügbar ab
    2027
  • Kaufpreis
    377.500 EUR

Ausstattung / Merkmale

  • ✓ Balkon
  • ✓ Barrierefrei
  • ✓ Duplex-Garage
  • ✓ Dusche
  • ✓ Keller
  • ✓ Personenaufzug

Energieausweis

  • Energieausweis
    wird bei Besichtigung vorgelegt

Objekt­beschreibung

Beschreibung

Das Neubauprojekt Ingolstadt überzeugt durch eine moderne, energieeffiziente Bauweise und die ausgezeichnete Infrastruktur der Stadt: Einkaufsmöglichkeiten, Schulen, medizinische Versorgung und der öffentliche Nahverkehr befinden sich in unmittelbarer Nähe – ebenso wie die Anbindung an wichtige Verkehrsachsen.

Das Wohnhaus mit 10 Einheiten wird nach dem KfW-Effizienzhaus-40-Standard mit QNG-Zertifizierung errichtet – einem der nachhaltigsten und förderfähigsten Gebäudestandards. Damit profitieren Käufer nicht nur von besonders niedrigen Heiz- und Betriebskosten, sondern haben auch die Möglichkeit, ein zinsgünstiges KfW-Förderdarlehen zu nutzen.

Das Projekt richtet sich sowohl an Kapitalanleger, die von der attraktiven Sonderabschreibung mit bis zu 10 % jährlich (kombiniert aus § 7b EStG + degressiver AfA) profitieren möchten, als auch an Eigennutzer, die modernen, gut geplanten Wohnraum in einer nachhaltig wachsenden Stadt suchen.

Die durchdachte Grundrissgestaltung, die hochwertige Ausstattung sowie ein moderner Personenaufzug machen das Gebäude sowohl für Familien als auch für Senioren und Menschen mit eingeschränkter Mobilität attraktiv. Individuelle Anpassungen an der Innenausstattung sind – je nach Baufortschritt – aktuell noch möglich.

Die Geschäftsleitung freut sich, Ihnen dieses besondere Wohnkonzept persönlich vorstellen zu dürfen – gerne in einem unverbindlichen Beratungsgespräch.

Ausstattung

Gebäudedetails:

- KfW-Effizienzhaus 40 mit QNG-Zertifizierung (Qualitätssiegel Nachhaltiges Gebäude)
- Förderfähiger Neubau mit Option auf zinsgünstiges KfW-Darlehen
- Hohe steuerliche Abschreibung durch Sonder-AfA (§ 7b EStG) + degressive AfA möglich (bis zu 10 % jährlich)
- Wertige Ziegelbauweise mit energieeffizienter Dämmung
- Luft-Wasser-Wärmepumpe in Kombination mit Fußbodenheizung in allen Räumen
- Dezentrale Wohnraumlüftung mit Wärmerückgewinnung
- Photovoltaikanlage

Wohnungsdetails:

- Moderne KNX-Smart-Home-Vorbereitung (z. B. für Licht, Heizung, Jalousien)
- Gegensprechanlage in jeder Wohneinheit
- Kunststofffenster mit 3-fach Wärmeschutzverglasung
- Hochwertiger Vinylboden in Holzoptik + Fliesen in Bad
- Barrierearme Bauweise – Aufzug in alle Etagen
- Badezimmer mit Bodengleich gefliester Dusche, WC und Waschbecken
- Großzügige Terrassen, Balkone je nach Einheit
- Kellerabteil zu jeder Wohnung, zusätzlicher gemeinschaftlicher Wasch-/Trockenraum

- Stellplätze in Form von Duplexparkern
- Individuelle Gestaltungsmöglichkeiten (je nach Bautenstand)
- Nachhaltige und langlebige Bauqualität durch erfahrenen QNG-zertifizierten Bauträger

Sonstige Informationen

Bei Kontaktaufnahme bitte folgende Angaben mitteilen, damit wir Ihnen eine entsprechende Servicequalität bieten können: Vor-/Nachname, E-Mail Adresse und Telefonnummer. Dieses Angebot ist für den Käufer provisionsfrei.

Wir machen darauf aufmerksam, dass sämtliche Objektinformationen und Angaben auf die Informationen des Eigentümers beruhen und daher keine Haftung für die Richtigkeit und Vollständigkeit von unserem Maklerbüro übernommen wird. Dargestellte Renderings, Möbel, Einbauten und Grafiken sind beispielhaft. Die Grundrisse sind nicht zur Maßnahme für die Möblierung geeignet.

Lage

Die Immobilie befindet sich in attraktiver Lage in Ingolstadt, einer der aufstrebenden Wohngegenden der Stadt. Die Umgebung zeichnet sich durch eine ruhige Wohnatmosphäre mit grünem Charakter aus, ohne auf die Vorteile urbaner Infrastruktur verzichten zu müssen.

Ingolstadt bietet als Großstadt mit hoher Lebensqualität eine perfekte Mischung aus Tradition, Innovation und wirtschaftlicher Stärke. Als Sitz namhafter Unternehmen – insbesondere in der Automobil- und Technologiebranche – ist die Stadt nicht nur für Berufspendler interessant, sondern auch für Kapitalanleger und Eigennutzer, die einen soliden Immobilienstandort mit Wachstumsperspektive suchen.

Einkaufsmöglichkeiten, Schulen, Kindergärten und medizinische Versorgung befinden sich in unmittelbarer Nähe. Die Innenstadt von Ingolstadt, das Donauufer sowie das beliebte Westpark Einkaufszentrum sind in wenigen Minuten erreichbar. Zudem besteht eine hervorragende Anbindung an den ÖPNV sowie die Autobahnen A9 und B16, was auch Pendler in Richtung München, Regensburg oder Nürnberg anspricht.

Die Lage in Ingolstadt überzeugt durch vielseitige Nutzungsmöglichkeiten, eine familienfreundliche Umgebung sowie den Wertzuwachs, den nachhaltige Neubauten mit QNG-Zertifizierung an diesem Standort versprechen.

Die dargestellte Position der Immobilie ist nur eine ungefähre Angabe.

Direktanfrage

* Pflichtangaben
 SSL-verschlüsselt
Immobiliendaten-Import und Darstellung für WordPress: WP-ImmoMakler®